Entwurf des ehemaligen Badhauses in Roßtal Lkr.FÜ
Entwurfsverfasser: Dipl.-Ing. Björn Seewald, Dipl.-Ing. Peter Huber.
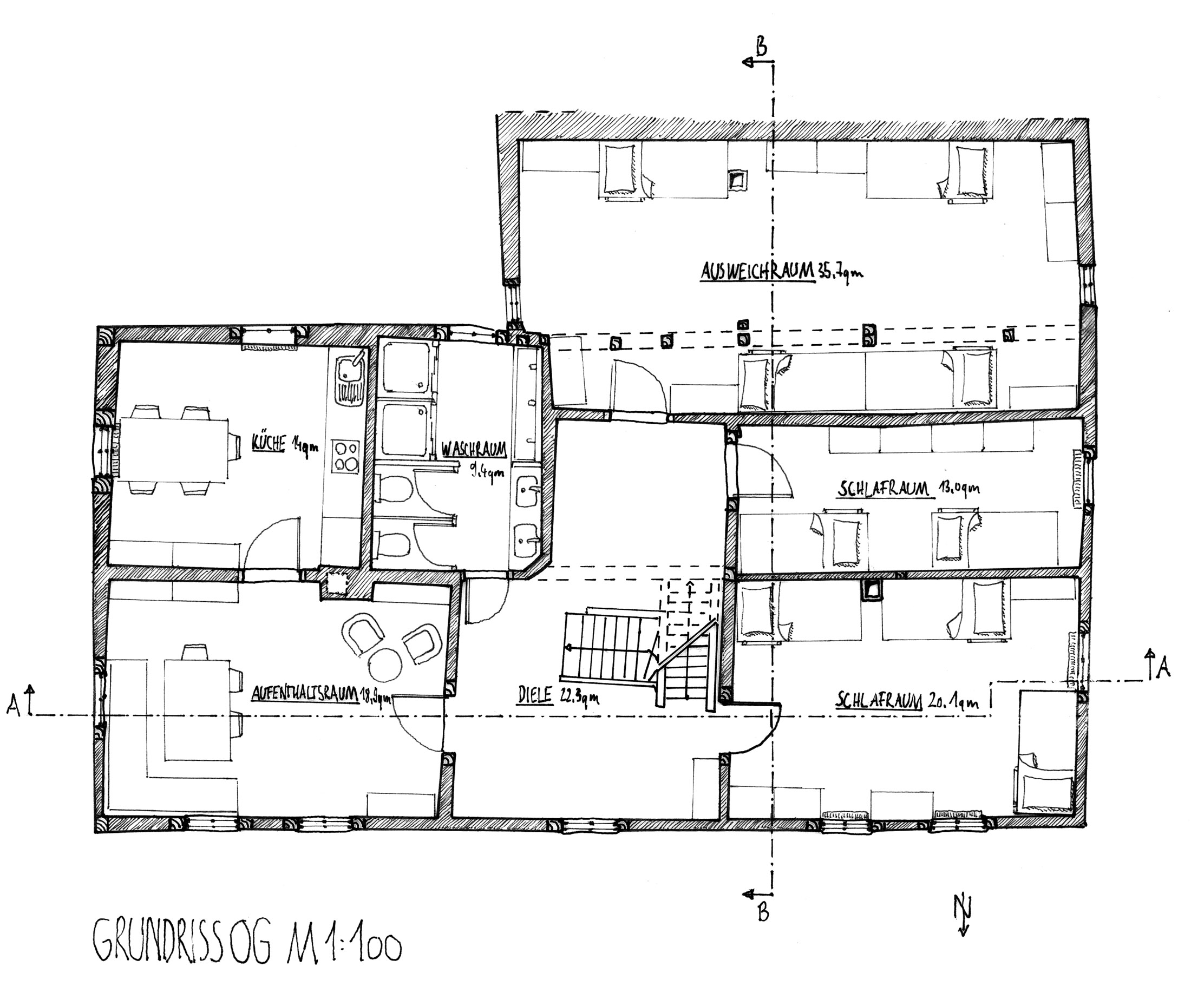
Die Aufgabe war es in das leerstehende barocke Badhaus eine Pilgerstation für den Jakobsweg einzurichten. Bei dem Projekt wurde darauf Wert gelegt die Denkmalsubstanz in größtem Umfang zu erhalten und die moderne Nutzung bestmöglich in die Struktur des Denkmals zu integrieren.



|